
行業動態 當前位置: 法蘭閘閥廠家> 資訊中心 >行業動態 >全焊接球閥廠家帶你了解焊接球閥型號規格、結構
全焊接球閥在各個領域使用都非常廣泛,其良好的品質和高性能的穩定性是普通鑄鋼球閥所無法達到的,全焊接球閥使用壽命遠遠大于鑄鋼球閥,全焊接球閥廣泛應用于城市燃氣、城市供熱、石油化工、造船、鋼鐵、調壓站、發電廠等各類管道設備上。全焊接球閥廠家采用API6D、API608、GB122237、ISO14313等標準研制開發生產,具有結構緊湊、美觀大方、質量可靠。
1 、閥體結構整體式焊接,不會有外部泄漏現象。
2 、閥座由PTFE密封環及彈簧組成對壓力和溫度的變化適應能力強,在使用范圍內不會產生任何泄漏。
3 、閥桿的防滲漏結構、閥桿底部有1個PTFE自封密封墊和1個O型密封圈,上面有2個O型密封圈、兩個PTFE密封墊組成,確保無泄露。
4 、閥體材料與管道材質相同,不會出現應力不勻,也不會由于地震及車輛經過地面時而擠壓變形。
5 、閥體輕且易于保溫。
6 、直埋式球閥可以直接埋于地下,不用建高大閥門井,只需地面上設置小型淺井,大大節省施工費用及工程時間。
7 、可根據管道的施工及設計要求調整閥體的長短和閥桿高度。
8 、球體的加工精度非常精密操作輕便,無不良干涉。
10 、有焊接和法蘭兩種連接方式。
11 、操作方式:手柄,齒輪(垂直/水平)
12 、在閥門正常操作使用的情況下,質保期20年。
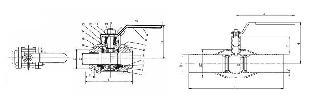
焊接球閥結構圖:

焊接球閥型號
高壓焊接球閥 | 全焊接球閥 |
一體式全焊接球閥 | 直埋式全焊接球閥 |
整體式全焊接球閥 | 埋地式全焊接球閥 |
蝸輪全焊接球閥 | 蝸輪加長桿全焊接球閥 |
縮徑渦輪焊接球閥 | 法蘭全焊接球閥 |
塑料承插焊接球閥 | 大口徑埋地焊接球閥 |
鍛鋼低溫焊接球閥 | |
相關新聞